Capannone con uffici e fotovoltaico
€ 590.000

Viale Lombardia - Verdello (BG) - 1.573 mq. ca.
DESCRIZIONE
Verdello, in provincia di Bergamo: immobile industriale indipendente nelle immediate vicinanze di Zingonia, di recente costruzione con uffici e ampia area esterna, situato a 7 km. dall'uscita autostradale Capriate sulla A4 Mi-Ve.
Composto da:
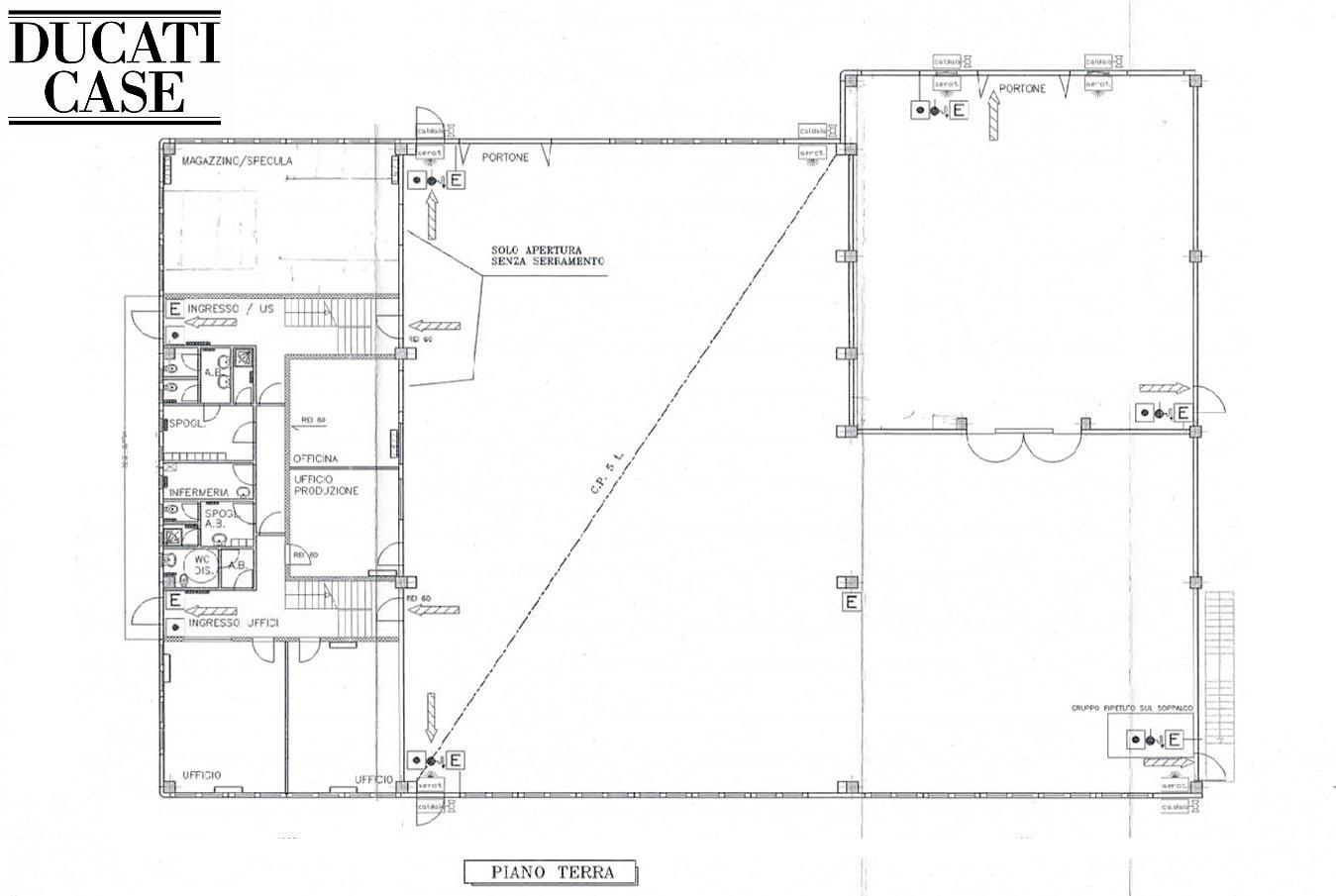
al piano terra di circa 1.300 mq. capannone industriale con tre uffici, officina, spogliatoio, infermeria, tre servizi, magazzino, due scale che servono i piani con due ingressi indipendenti oltre a due ingressi con portone carrabile da cui si accede direttamente al capannone;
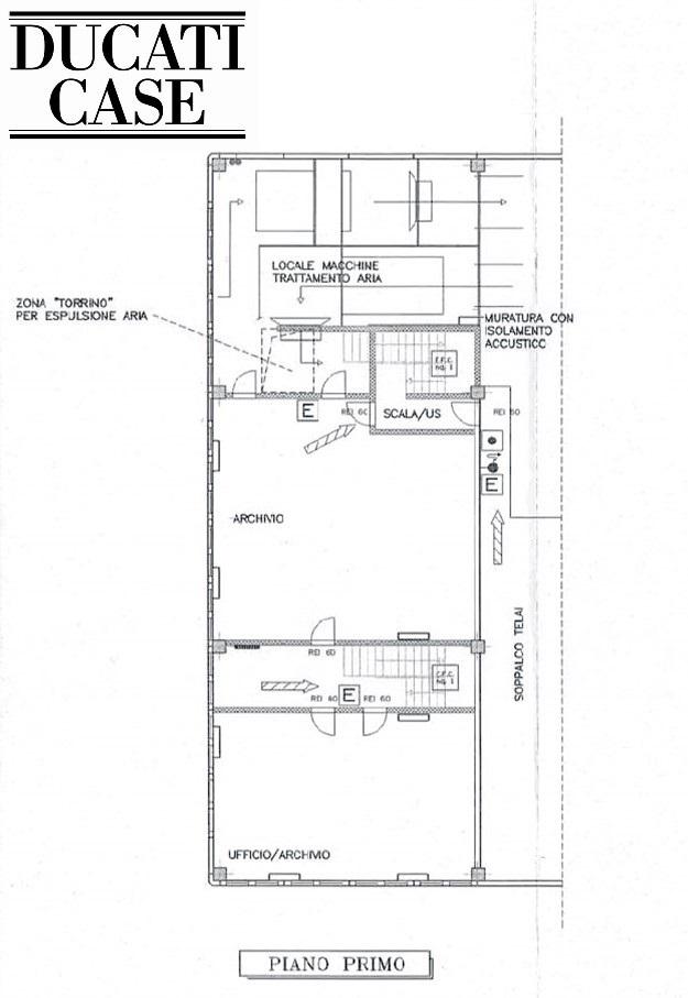
al primo piano di circa 285 mq., grande ufficio show-room, archivio, locali tecnici.
Esposizione quadrupla, in perfette condizioni e molto luminoso grazie alla fascia continua di finestre nella parte alta, pavimento anti-vibrazioni, impianti a norma, autorizzazione VVF in essere con vasca d'acqua interrata, impianto di aria condizionata e riscaldamento autonomo con termostati indipendenti negli uffici, capannone con impianto di deumidificazione e riscaldamento, recente impianto fotovoltaico da 83 kw circa sulla copertura, cabina trasformazione media tensione 130 kw, costruzione con certificazione anti-sismica, cancello elettrico, stabile moderno costruito nel 2000.

PRENOTA ORA UNA VISITA

Tutti i dati e le informazioni contenuti nel presente documento sono stati forniti dal venditore/proprietario e devono considerarsi come puramente indicativi senza potere essere considerati quale presupposto contrattuale. Le planimetrie non sono in scala e le metrature sono commerciali.
PLANIMETRIE
CARATTERISTICHE
Città: Verdello (BG)
Indirizzo/zona: Viale Lombardia
Superficie circa: 1.573 mq.
Classe Energetica: G - 86,93 kWh/m³ anno
Richiesta: € 590.000
Spese Condominiali:
Uffici: Si (560 mq. circa)
Aria condizionata : Si
Riscaldamento: Si
Altezza sottotrave: 6,5 m.
Parcheggio: 7 posti auto
Area esterna: 830 mq. circa
:
MAPPA