Appartamento con balcone e box
€ 830.000 oltre a box

Via Pallavicino - Milano (MI) - 93 mq. ca.
DESCRIZIONE
La proprietà immobiliare si trova in una delle più piacevoli zone di Milano a due passi da corso Vercelli, il parco “Guido Vergani" e poco distante da city life.
Ben servita dai mezzi pubblici di superficie e dalla metropolitana linea rossa fermata Pagano.
L’appartamento, molto tranquillo, di circa 93 mq. ha una doppia esposizione con piacevoli affacci su giardini interni e si trova in un elegante palazzo del 2010 con portineria, ascensore, giardino condominiale, garage.
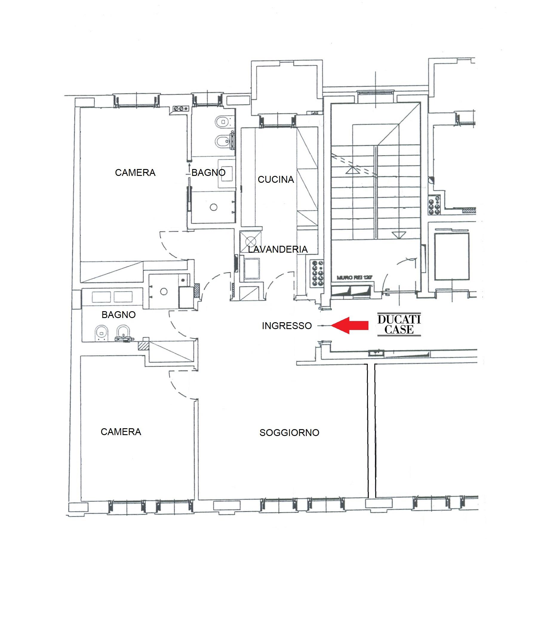
Composto da:
doppio ingresso, soggiorno, cucina con balcone, disimpegno con angolo lavanderia, due camere, due bagni oltre a cantina.
La proprietà è dotata di aria condizionata e riscaldamento a pavimento con contabilizzazione autonoma.
Oltre ad ampio box singolo a € 80.000,00

PRENOTA ORA UNA VISITA.

Tutti i dati e le informazioni contenuti nel presente documento sono stati forniti dal venditore/proprietario e devono considerarsi come puramente indicativi senza potere essere considerati quale presupposto contrattuale.
PLANIMETRIE
CARATTERISTICHE
Città: Milano (MI)
Indirizzo/zona: Via Pallavicino
Superficie circa: 93 mq.
Classe Energetica: B - 42,73 kWh/m² anno
Richiesta: € 830.000 oltre a box
Spese Condominiali: € 375 mese
Locali: 3
Bagni: 2
Balcone: Si
Box singolo: € 80.000,00
Cantina: Si
Portineria: Si
Zona: Pagano
MAPPA