Villa con parco
€ 900.000

Franciacorta - Castrezzato (BS) - 1.600 mq. ca.
DESCRIZIONE
Elegante villa di recente costruzione, con splendido parco piantumato di circa 2.000 mq., piscina coperta, sala cinema, sala giochi, caveau, palestra.
La villa ben esposta e soleggiata su due piani oltre a seminterrato, è situata a pochi chilometri da Castrezzato, composta da:
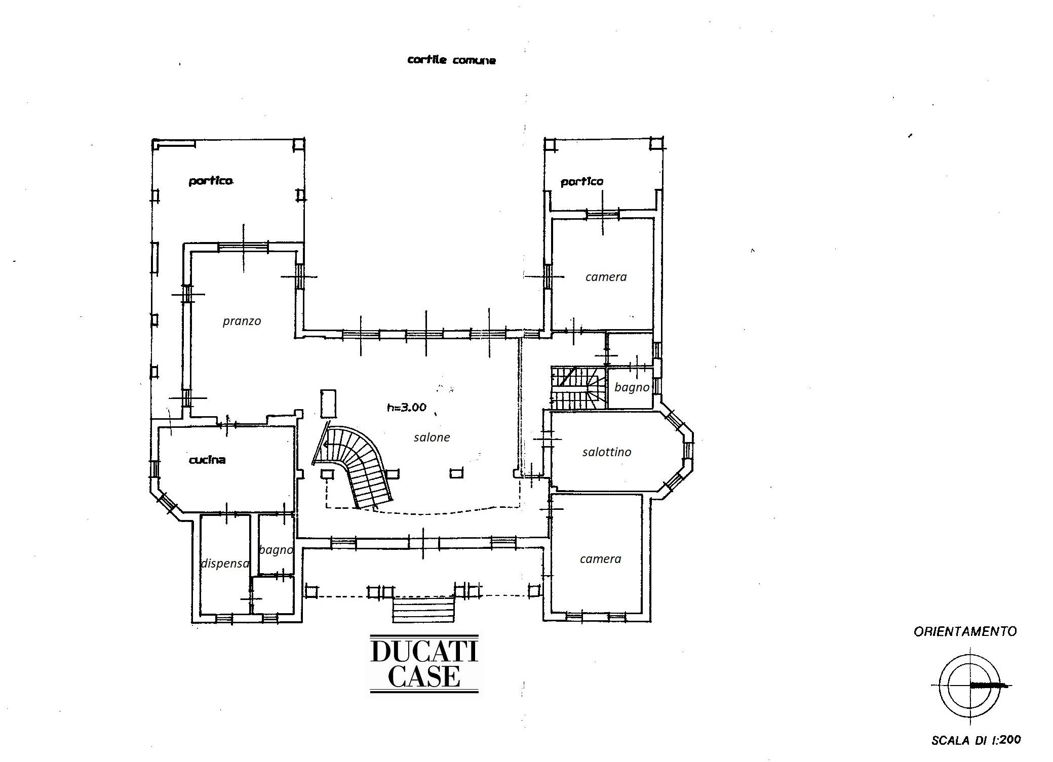
piano rialzato ingresso, ampio salone doppia altezza affacciato sulla fontana del cortile interno, sala da pranzo affacciata sul portico, cucina con locale dispensa e bagno, salottino affacciato sul portico, due studi, bagno ospiti, imponente scalone che porta al primo piano;
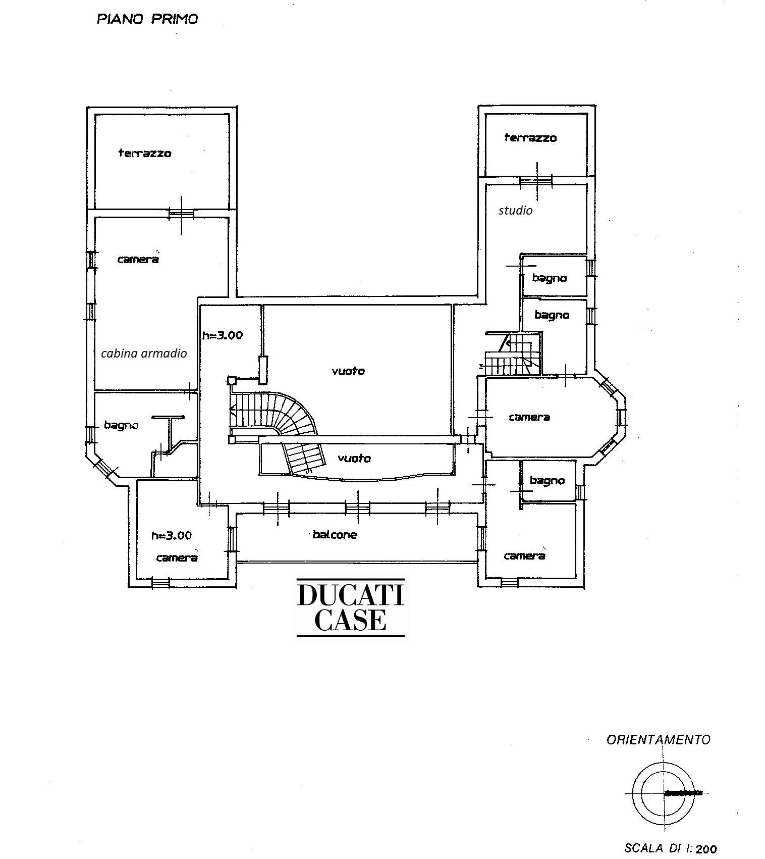
primo piano ampio disimpegno, grande master suite con terrazzo, bagno en suite e guardaroba, disimpegno aperto sul salone e affacciato sul lungo balcone, tre master suite con tre bagni, studio affacciato sul terrazzo, bagno ospiti;
piano seminterrato ampi spazi dedicati allo svago e al relax, come taverna attrezzata con cucina, sala cinema, sala giochi, piscina, bagno con sauna e idromassaggio, palestra, lavanderia – stireria, caveau, cantina, locale caldaia, locali tecnici, autorimessa.
Ben esposta e soleggiata con finiture di lusso, pavimenti in marmo e parquet, soffitti affrescati, spazi esterni attrezzati, in perfette condizioni, facilmente raggiungibile in auto tramite la BreBeMi e l'autostrada A4, a 30 minuti dall'aeroporto internazionale di Bergamo Orio al Serio e da Milano.

PRENOTA ORA UNA VISITA

Tutti i dati e le informazioni contenuti nel presente documento sono stati forniti dal venditore/proprietario e devono considerarsi come puramente indicativi senza potere essere considerati quale presupposto contrattuale.
PLANIMETRIE
CARATTERISTICHE
Città: Castrezzato (BS)
Indirizzo/zona: Franciacorta
Superficie circa: 1.600 mq.
Classe Energetica: C - 121,80 kWh/m² anno
Richiesta: € 900.000
Spese Condominiali: A consumo
Piani: 3
Terrazzi: Si
Piscina: Si
Portici: Si
Giardino: 2.000 mq.ca.
Autorimessa: Si
Zona: Franciacorta
MAPPA