Abitazione con terrazzo e box
€ 1.380.000 oltre a box

Via Valpetrosa - Milano (MI) - 165 mq. ca.
DESCRIZIONE
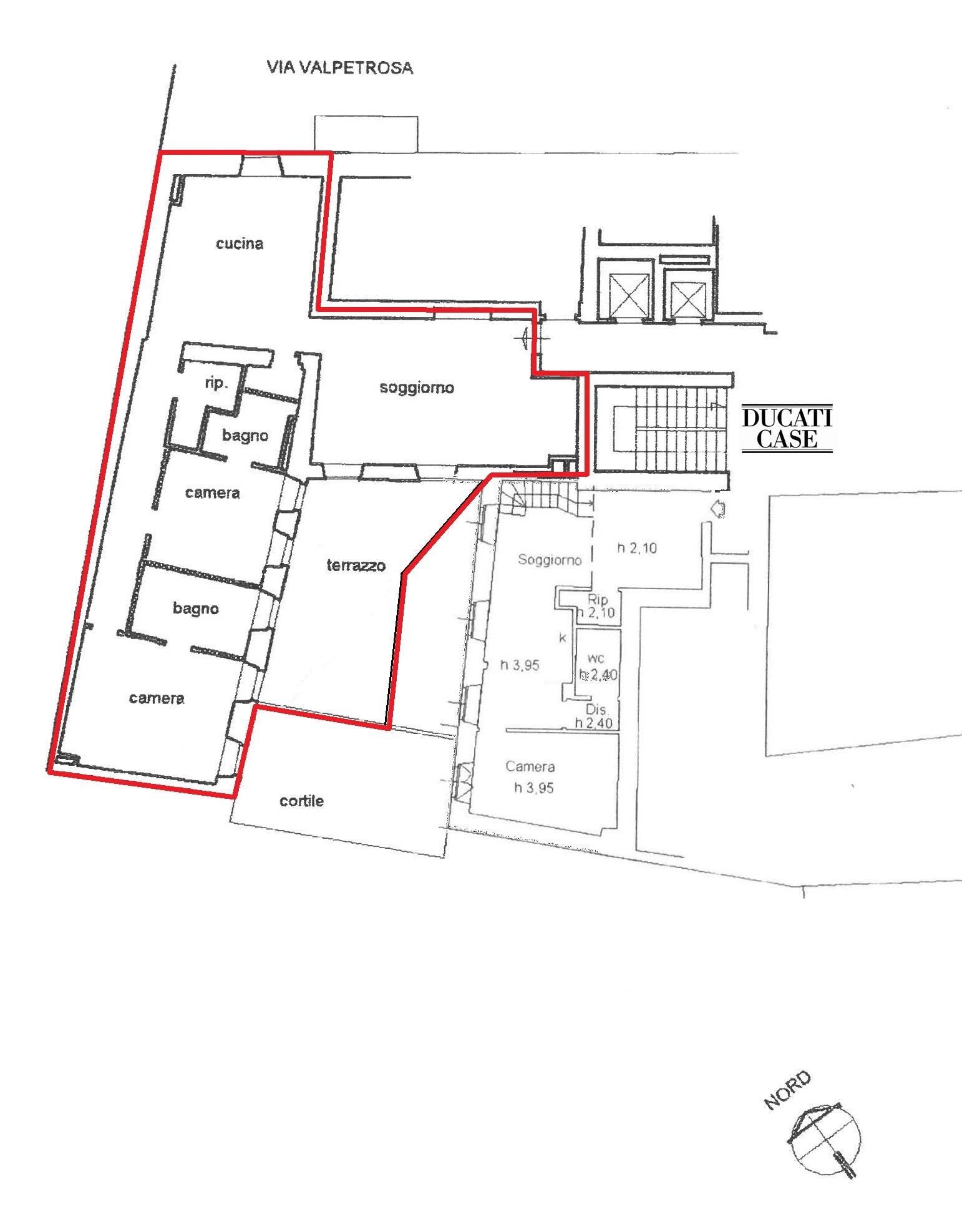
Via Valpetrosa: splendido appartamento con terrazzo, soppalchi e box singolo, posto al primo piano di circa 165 mq.
Nel cuore della Milano storica, prestigioso appartamento di circa 165 mq. con terrazzo con impianto d'irrigazione.
Composto da:
ingresso, ampio soggiorno affacciato sul terrazzo, cucina con pranzo e accesso sul terrazzo, angolo lavanderia, camera matrimoniale con bagno, camera con soppalco, bagno, ripostiglio.
Esposizione doppia, luminoso e tranquillo, pavimenti in legno, soffitti molto alti, completamente e recentemente ristrutturato con finiture moderne ed eleganti, arredi su misura, aria condizionata, irrigazione automatica, in tipico palazzo del 1900 "vecchia Milano" con ascensore, portineria e videocitofono, nella splendida Milano storica a due passi dalla metropolitana linea rossa fermata MM Missori, Cordusio e Duomo.

Oltre a box singolo a € 75.000

PRENOTA ORA UNA VISITA

Tutti i dati e le informazioni contenuti nel presente documento sono stati forniti dal venditore/proprietario e devono considerarsi come puramente indicativi senza potere essere considerati quale presupposto contrattuale. Le planimetrie non sono in scala e le metrature sono commerciali.
PLANIMETRIE
CARATTERISTICHE
Città: Milano (MI)
Indirizzo/zona: Via Valpetrosa
Superficie circa: 165 mq.
Classe Energetica: F - 170,45 kWh/m² anno
Richiesta: € 1.380.000 oltre a box
Spese Condominiali: € 416 mese
Locali: 3
Bagni: 2
Terrazzo: Si
Box: singolo
Aria condizionata: Si
Portineria : Si
:
MAPPA