Villa con scuderia e parco
€ 585.000

Casorate Sempione - Parco del Ticino - Varese (VA) - 500 mq. ca.
DESCRIZIONE
Chalet d'epoca risalente ai primi del '900, immerso nella brughiera costruito da un falegname della Val Gardena, ricorda le scuderie inglesi e ne ricrea la suggestiva atmosfera.
Situato nel cuore del Parco del Ticino si trova in una zona residenziale di prestigiose ville a Casorate Sempione, Varese, vicino a numerose e rinomate scuderie ippiche raggiungibili anche a cavallo come per esempio il Campo San Giorgio Riding Club e la Scuderia della Capinera.
La proprietà immobiliare ben esposta e soleggiata, disposta su tre piani comodamente collegati da una scala interna e due esterne, è dotata di due ampi terrazzi, un portico e graziosa depandance indipendente nel giardino, con possibilità di ampliamento per 200 mc.
Porzione immobiliare di circa 415 mq. composta da:
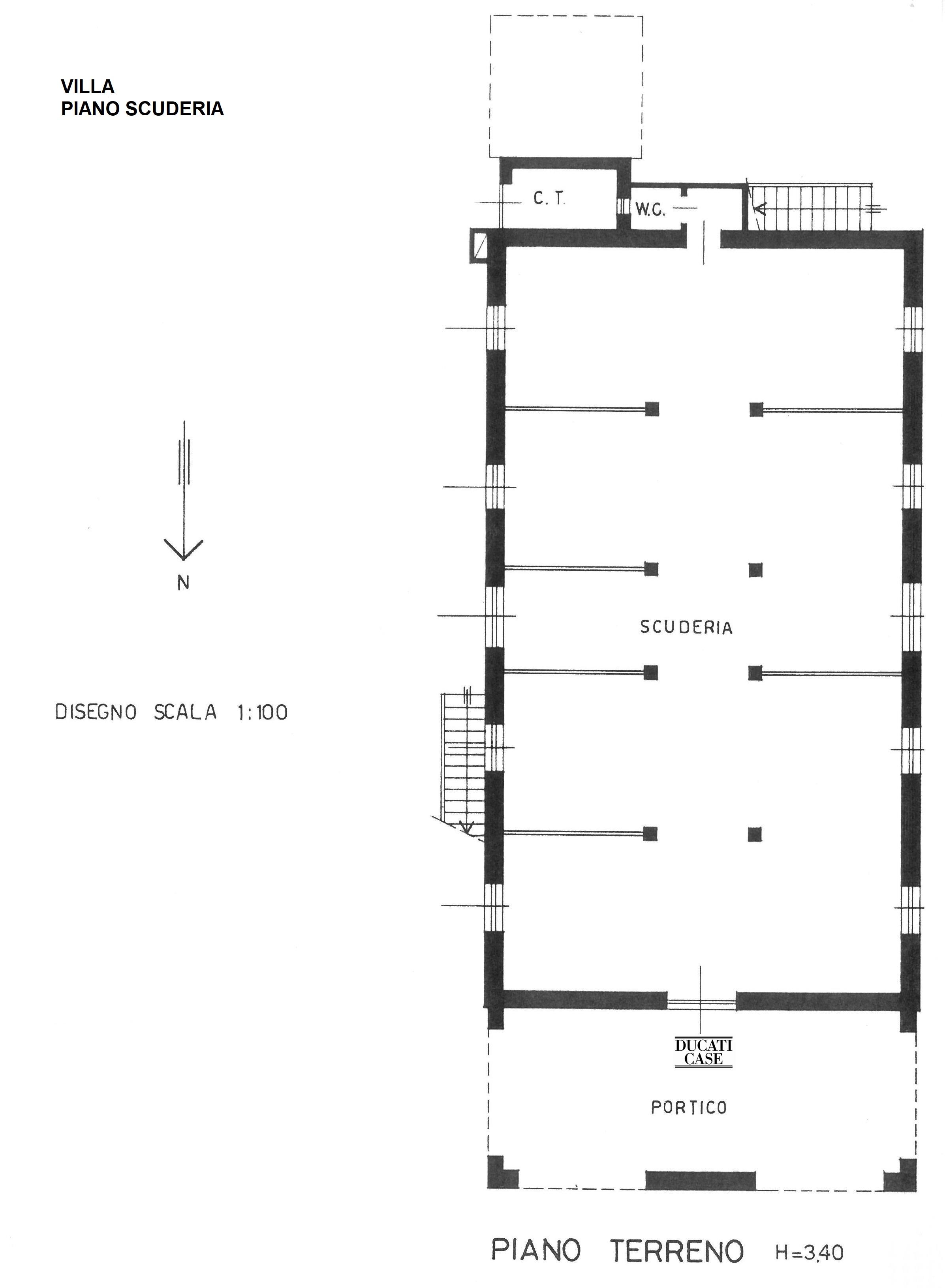
al piano terra di circa 160 mq. con ingresso da portico, scuderia con otto box cavalli e due box pony che possono essere adibiti a selleria e lavaggio, bagno e centrale termica;
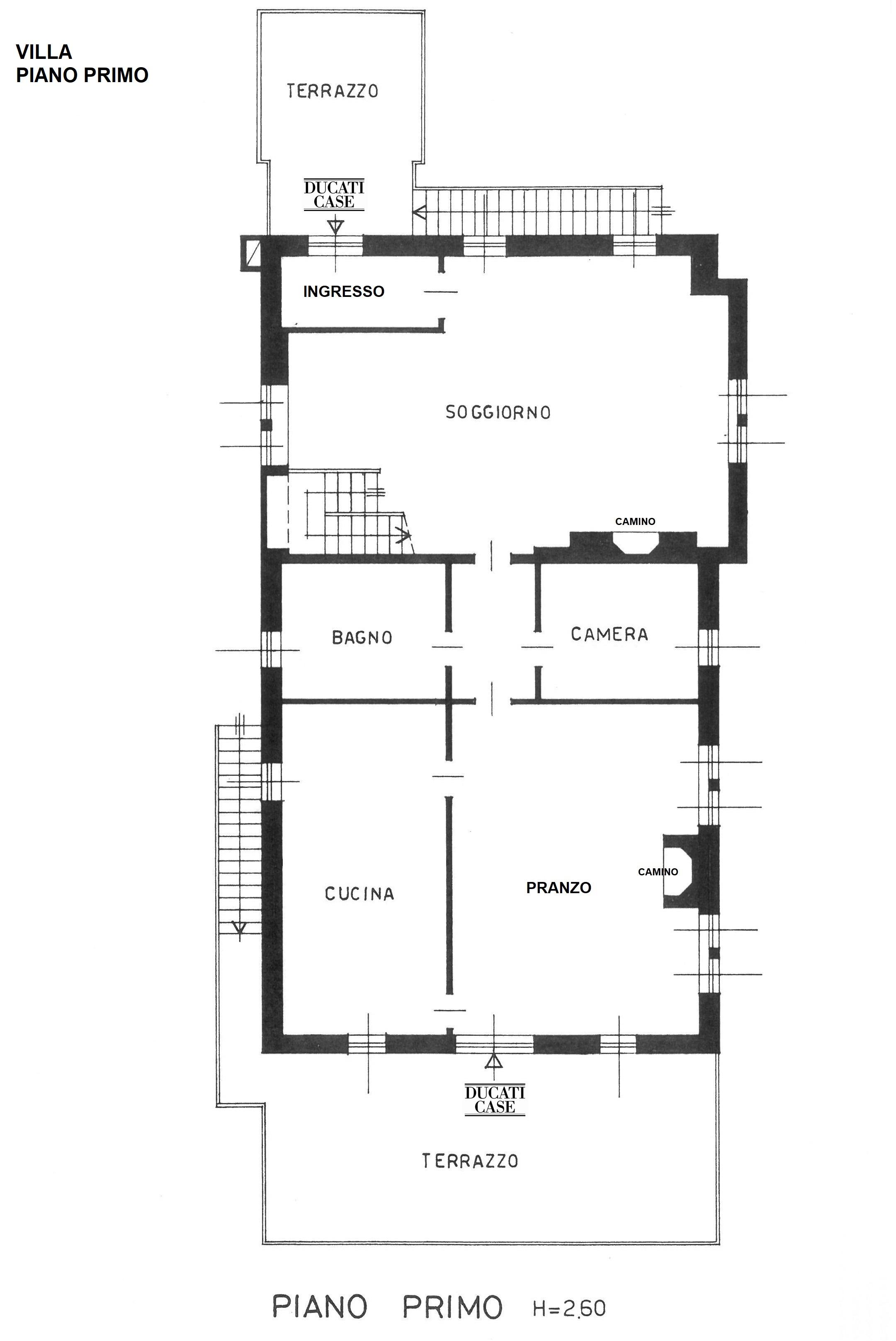
al primo piano di circa 160 mq. oltre a circa 45 mq. di terrazzi, doppio ingresso da entrambi i terrazzi situati alle due estremità, pranzo con camino affacciato sul terrazzo con a fianco una grande cucina, camera e bagno, soggiorno con camino;
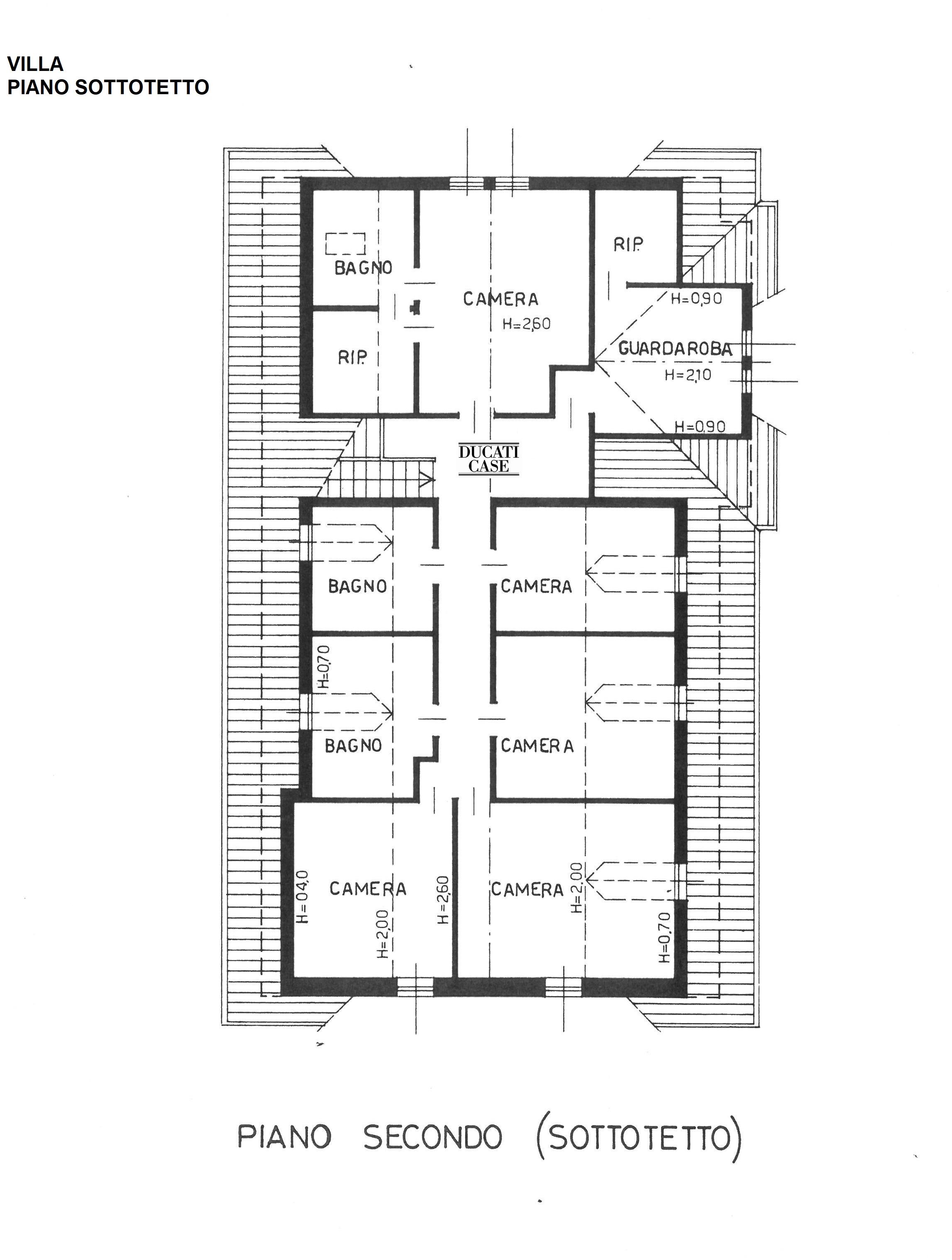
al secondo piano di circa 80 mq. comodamente collegato con una scala interna al piano inferiore, cinque camere, tre bagni, guardaroba, due ripostigli, attualmente senza abitabilità che si può facilmente tramutare con pratica edilizia recupero sottotetto con 30.000 € di oneri che la proprietà sconta dal prezzo.
Depandance indipendente di circa 85 mq. composta da:
al piano terra, soggiorno con camino e cucina a vista;
al primo piano, camera, cabina armadio, bagno.



L'abitazione posta al primo e al secondo piano di circa 255 mq. ben esposta e soleggiata, facilmente divisibile in più unità, è dotata di un parco fiabesco che crea bellissimi sfondi ad ogni finestra, completamente cintata, pavimenti in parquet a listoni, vecchio pavimento in mattoni a spina di pesce nella scuderia, giardino di circa 13.000 metri quadri.
E' stata verificata la possibilità di ottenere l'ecobonus del 110 % tramite un progetto completo di preventivo.
Situata nelle immediate vicinanze del centro di Casorate Sempione, a 10 minuti da Gallarate e a 40 minuti da Milano, vicino all'aeroporto internazionale della Malpensa, ben servita dalla linea ferroviaria Nord.

PRENOTA ORA UNA VISITA

Tutti i dati e le informazioni contenuti nel presente documento sono stati forniti dal venditore/proprietario e devono considerarsi come puramente indicativi senza potere essere considerati quale presupposto contrattuale. Le planimetrie non sono in scala e le metrature sono commerciali.
PLANIMETRIE
CARATTERISTICHE
Città: Varese (VA)
Indirizzo/zona: Casorate Sempione - Parco del Ticino
Superficie circa: 500 mq.
Classe Energetica: G - 334,37 kWh/m² anno
Richiesta: € 585.000
Spese Condominiali:
Abitazione: 255 mq.ca.
Scuderia: 10 box
Giardino: 13.000 mq.ca.
Terrazzi: Si
Portico: Si
Depandance: 85 mq.ca.
:
MAPPA