Abitazione con terrazzo e box
€ 1.000.000 oltre a box

Via Franco Tosi - Milano (MI) - 210 mq. ca.
DESCRIZIONE
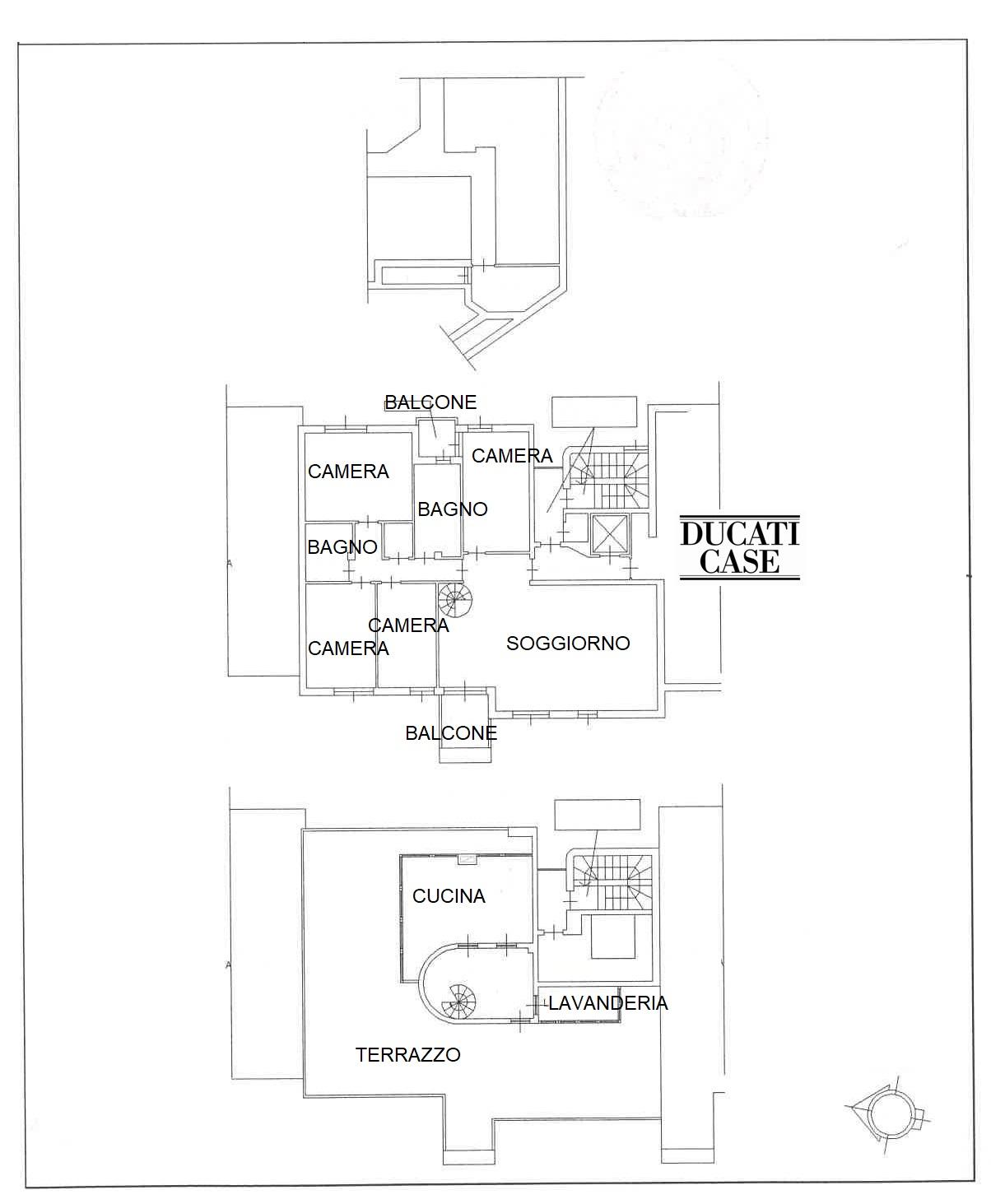
Via Franco Tosi: luminosissimo e soleggiato appartamento posto al quinto e sesto piano di circa 210 mq. con terrazzo, balconi e box.
Composto da:
piano quinto - ingresso, ampio soggiorno con camino e balcone, quattro camere di cui quella con balcone può essere riconvertita in cucina, due bagni di cui uno con balcone, ripostiglio e scala che porta al piano superiore;
sesto ed ultimo piano - grande disimpegno che accede all'ampia cucina con zona pranzo affacciata sull'accogliente terrazzo di circa 75 mq. immerso nel verde con vista a 360°, lavanderia.
Esposizione doppia, ben orientato e soleggiato, tranquillo e luminoso, pavimenti in parquet, aria condizionata in soggiorno, box singolo e cantina, splendido terrazzo che gode di un'ottima privacy e vista a 360° sulla città e le Alpi, in una zona residenziale elegante e tranquilla vicino al Naviglio e all'università Iulm, ben servito dai mezzi di superficie e dalla Metropolitana linea verde fermata Romolo e la nuova linea Blu in fase di realizzazione, in elegante palazzo del 1960 con portineria mezza giornata, ascensore e videocitofono.
PRENOTA ORA UNA VISITA

Oltre a box singolo a € 30.000,00

Tutti i dati e le informazioni contenuti nel presente documento sono stati forniti dal venditore/proprietario e devono considerarsi come puramente indicativi senza potere essere considerati quale presupposto contrattuale. Le planimetrie non sono in scala e le metrature sono commerciali.
PLANIMETRIE
CARATTERISTICHE
Città: Milano (MI)
Indirizzo/zona: Via Franco Tosi
Superficie circa: 210 mq.
Classe Energetica: F - 462,59 kWh/m² anno
Richiesta: € 1.000.000 oltre a box
Spese Condominiali: € 525 mese
Locali: 5
Terrazzo: Si
Bagni: 2
Servizio portineria: Si
Cantina: Si
Aria condizionata : Si
Box: Si
MAPPA