Negozio due vetrine
€ 24.000 annui + spese

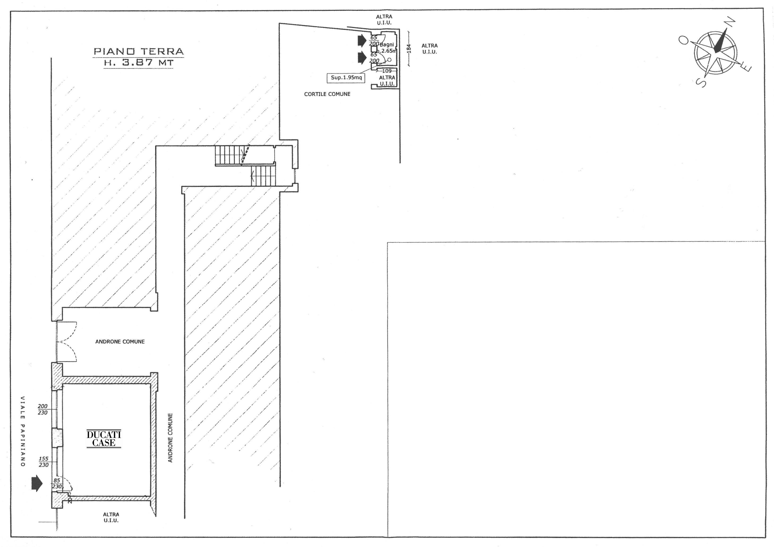
Viale Papiniano - Milano (MI) - 50 mq. ca.
DESCRIZIONE
Viale Papiniano, in una zona di alto passaggio pedonale e ottima visibilità, adiacente ad altri negozi come pizzeria Spontini, pasticceria La Martesana e di fronte il mercato martedì e sabato mattina.
Negozio con due ampie vetrine in affitto con ingresso da strada, bagno privato e ampia cantina di circa 26 mq.
Esposizione sulla via, a due passi da via Olona, ben servito dai mezzi di superficie e dalla metropolitana linea verde M2 fermata Sant'Agostino e poco distante dalla linea blu fermata Solari in fase di ultimazione, in elegante stabile anni 60 con portineria e ascensore.

PRENOTA ORA UNA VISITA

Tutti i dati e le informazioni contenuti nel presente documento sono stati forniti dal venditore/proprietario e devono considerarsi come puramente indicativi senza potere essere considerati quale presupposto contrattuale.
Si precisa che, qualora la trattativa per la locazione dovesse andare a buon fine, alla stipula del contratto di locazione, dovrà essere corrisposto, da Lei, dalla Vostra Società o da Società a Voi ricollegabili, un compenso per la mediazione pari al 15% (oltre IVA di Legge ed eventuale ritenuta di acconto) del canone annuo di locazione a regime, alla Ducati Case S.r.l.
Tutti i dati e le informazioni contenuti nel presente documento sono stati forniti dal venditore/proprietario e devono considerarsi come puramente indicativi senza potere essere considerati quale presupposto contrattuale. Le planimetrie non sono in scala e le metrature sono commerciali.
PLANIMETRIE
CARATTERISTICHE
Città: Milano (MI)
Indirizzo/zona: Viale Papiniano
Superficie circa: 50 mq.
Classe Energetica: G - 81 kWh/m³ anno
Richiesta: € 24.000 annui + spese
Spese Condominiali: € 150 annui
Locali: 1
Bagni: 1
Cantina: Si
Esposizione: Su strada
Vetrine: 2
Altezza locali: 3,80 m.
:
MAPPA