Ufficio con balconi
€ 38.000 annui + spese

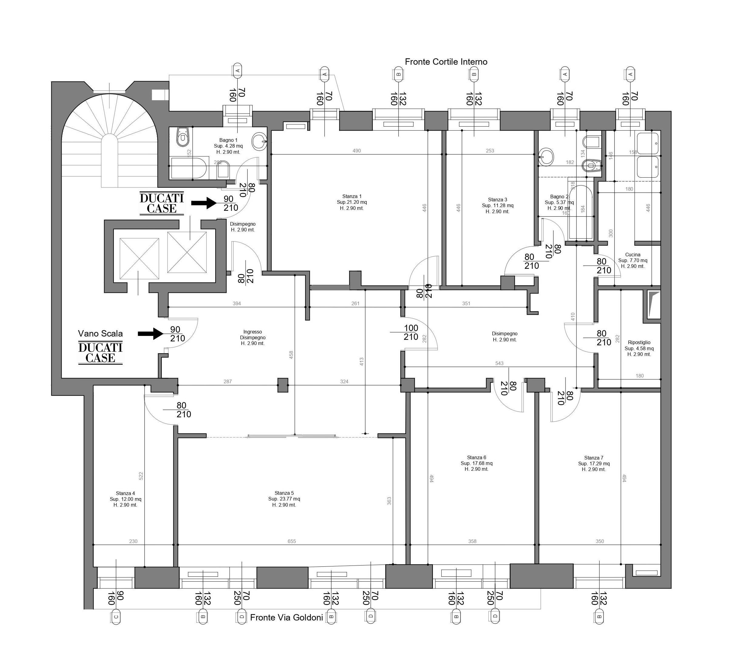
Via Goldoni - Milano (MI) - 200 mq. ca.
DESCRIZIONE
Via Goldoni: luminosissimo ufficio in affitto posto al primo piano di circa 200 mq. con grande balcone.
Composto da: doppio ingresso, reception, sei locali, sala riunioni eventualmente divisibile affacciata sul balcone, locale coffee break, due bagni, ripostiglio.
Esposizione doppia, due balconi, luminoso e silenzioso, pavimenti in marmo e parquet, a due passi da piazza Tricolore, ben servito dai mezzi pubblici di superficie, aria condizionata, cantina, in elegante stabile del 1960 con portineria, due ascensori e parti comuni appena ristrutturate.

PRENOTA ORA UNA VISITA

Tutti i dati e le informazioni contenuti nel presente documento sono stati forniti dal venditore/proprietario e devono considerarsi come puramente indicativi senza potere essere considerati quale presupposto contrattuale. Le planimetrie non sono in scala e le metrature sono commerciali.
PLANIMETRIE
CARATTERISTICHE
Città: Milano (MI)
Indirizzo/zona: Via Goldoni
Superficie circa: 200 mq.
Classe Energetica: D - 58,57 kWh/m³ anno
Richiesta: € 38.000 annui + spese
Spese Condominiali: € 666 mese
Locali: 7
Bagni: 2
Portineria: Si
Zona: Piazza Tricolore
:
:
:
MAPPA